Goltackers 28

6931 HD Westervoort

Tussenwoning  
114m²  
4 slaapkamers

Vragen? Bel 0316 848 033   Contact opnemen

Omschrijving

Dicht bij het centrum, 4 slaapkamers, op wandelafstand van de uiterwaarden en op fietsafstand van Arnhem.

Nabij het centrum van Westervoort gelegen ruime tussenwoning met 4 slaapkamers en een diepe tuin, in een nette woonwijk (Emmerik). De woning is gunstig gelegen waardoor u geen directe inkijk heeft aan de voor- en achterzijde van de woning. Doordat de woning dicht bij de uiterwaarden en diverse parkjes ligt is het huis prima geschikt voor bewoners die graag in de natuur wandelen of fietsen. Voor hondenbezitters zijn diverse losloopvelden in de nabijheid.

Alle voorzieningen (winkels, scholen, sportgelegenheden) in de directe omgeving. De steden Arnhem, Nijmegen en Zevenaar zijn allen binnen enkele auto- minuten te bereiken.
De woning bevindt zich op vijf minuten fietsen van het centrum van Westervoort, het NS-station, en de Westervoortse brug naar Arnhem.


Indeling:
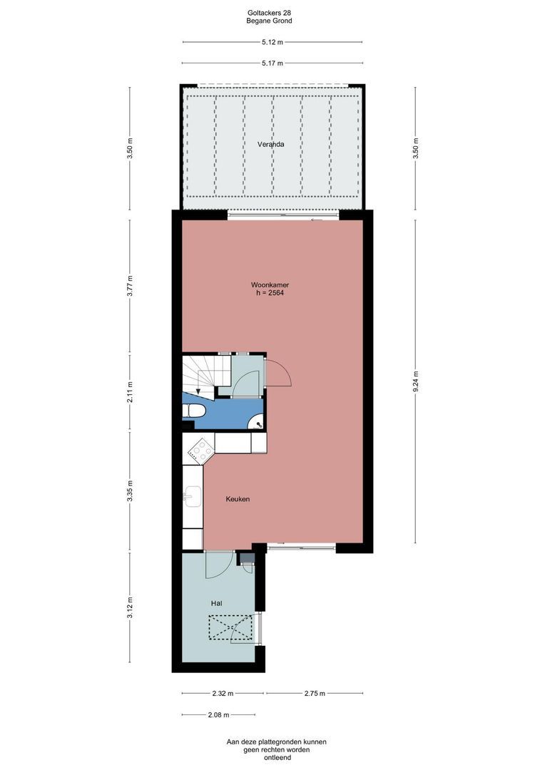
Begane grond:
Entree/hal.
Tuingerichte L-vormige woonkamer met schuifpui naar terras.
Ruime open keuken in een hoekopstelling met inbouwapparatuur zoals inductiekookplaat, afzuigkap, combimagnetron, vaatwasser en koelkast
Via de keuken toegang naar bijkeuken/berging.
Hal met hangend toilet plus fontein en trapopgang naar de eerste etage.
(Nagenoeg de gehele begane grond is voorzien van plavuizenvloer met vloerverwarming.)

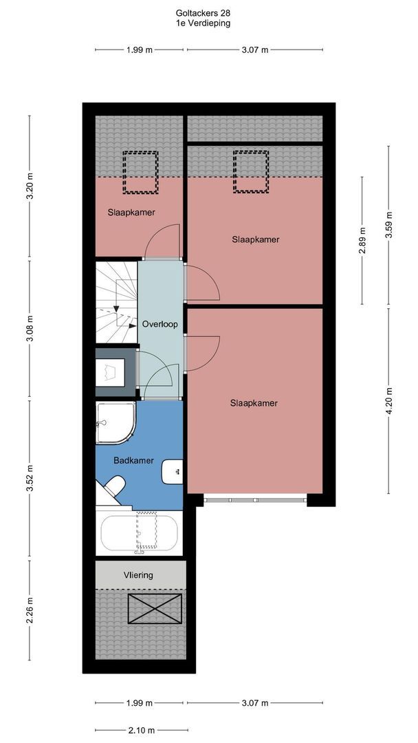
1e etage:
Overloop met drie slaapkamers en bergkast.
Badkamer met o.a. ligbad met air- en hydrojets, douchecabine met extra handdouche.
Hangend toilet, wastafel en designradiator. Het badkamerraam is uniek in de straat.
Separate wasruimte met aansluiting voor de wasmachine en droger.

2e etage:
Voorzolder met opstelling van de Cv-ketel.
Vierde slaapkamer.

Bijzonderheden:
Woning deels voorzien van kunststof kozijnen.
Ramen voorzijde voorzien van HR++-glas.
Begane grond grotendeels voorzien van vloerverwarming.
Gunstig gelegen t.o.v. de overburen en achterburen: weinig inkijk, dus veel privacy.
Het badkamerraam is uniek in de straat. De andere huizen hebben dat niet. Hierdoor veel lichtinval in de badkamer.
De voorgevel beneden is volledig raam gemaakt en het halletje is weg, waardoor de keuken een leef-keuken is geworden met veel meer lichtinval dan bij vergelijkbare huizen.

Omschrijving:
Bouwjaar: 1979
Kamers: 5
Slaapkamers: 4
Woonoppervlak: ca. 114 m2
Overige inpandige ruimte: 1,4 m2
Overkapping: ca 18 m2
Externe bergruimte: ca. 10 m2.
Inhoud: ca. 416 m3
Perceeloppervlakte: 168 m2
Aanvaarding: In overleg

Kenmerken

Vraagprijs
€ 390.000 k.k.
Status
Beschikbaar
Oplevering
In overleg
Wijk
Westervoort

Bouw

Woonhuis
Eengezinswoning, Tussenwoning
Soort bouw
Bestaande bouw
Bouwjaar
1979
Onderhoud binnen
Goed
Onderhoud buiten
Goed

Oppervlakten en inhoud

Oppervlakte
114m²
Perceel
168m²
Overig
1m²
Inhoud
416m³

Indeling

Kamers
5
Slaapkamers
4
Badkamers
1
Verdiepingen
3
Voorzieningen
Rolluiken

Buitenruimte

Tuin
Achtertuin, Voortuin
Achtertuin
72m², 550×1300cm
Schuur
Vrijstaand hout

Energie

Energielabel
B
Warm water
C.V.-ketel
Verwarming
C.V.-ketel
Ketel
ATAG Blauwe Engel II (2014, Combi-ketel, Eigendom)

Locatie

Bereken route
[ { "address": "Goltackers 28", "zipCode": "6931 HD", "city": "Westervoort", "lat": 51.9572552, "lng": 5.9671818, "heading": 0, "pitch": 0 } ]

Ja, ik wil Goltackers 28 bezichtigen!